全ての一戸建て・マンション・土地・収益物件・賃貸物件の売却購入情報|関西ネット不動産

西宮市、尼崎市、伊丹市、芦屋市、宝塚市の売買仲介(ご売却・ご購入)、査定、賃貸仲介、賃貸管理は関西ネット不動産へ

西宮店0798-31-0119、尼崎店06-4950-6311、北大阪店072-737-4787、大阪南森町店06-6360-4511、新大阪店06-6152-7878

ご相談・お問い合わせ無料!(営業時間 9:00〜18:00 定休日:火曜日、水曜日)

TOP > 物件一覧

関西ネットリフォーム 空家相続センターオープンハウス お客様の声 採用情報

販売物件情報
一覧へ戻る

成約済 川西市錦松台中古戸建 物件ID 1098

土地面積約66坪!駐車スペース並列3台以上駐車可能!

価格 交通 土地面積 建物面積 間取り 築年数
成約済 阪急宝塚線 川西能勢口駅 バス12分 徒歩5分
JR福知山線 川西池田駅 バス12分 徒歩5分
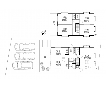
218m² 96.99m² 6LDK 平成1年10月
  • 外観

    外観

  • LDK約12帖

    LDK約12帖

  • キッチン

    キッチン

その他ギャラリー

担当者メッセージ
スタッフ画像

植村 晋也

担当者詳細

川西市錦松台中古戸建

 

土地面積約66坪!

駐車スペース 並列3台以上可能!

 

■土地面積 218平米

       (約65.94坪)

■建物面積 96.99平米

全居室6帖以上の6LDK!

 

建物は平成元年の建築ですが

大変丁寧にご使用されていますので

とてもきれいです。

 

駅からは

阪急川西能勢口駅もしくは

JR川西池田駅からバス便の

利用となりますが、

最寄りのバス停からは

朝の7時台、8時台には

約20本ほどのバスがありますので

通勤も不自由なくして頂けると思います。

 

 小学校・中学校は比較的近くです。

◎明峰小学校 約800m

◎明峰中学校 約1300m

 


お問い合わせは

北大阪店 072-761-5880

リフォームページが拡大リニューアル致しました!
関西ネットリフォームHP
小規模リフォームから全面リノベーションまで、関西ネットリフォームにお任せください。
物件探しからリフォーム・リノベーションまでのワンストップサービスや、賃貸物件の空室対策リフォーム、店舗設計、解体工事まで、幅広くお手伝いさせていただきます。
楽しく、快適に暮らしていただきたいをモットーに、関西ネットリフォームでは真心を込めたリフォームをご提案致します。
こちらのホームページでは施工事例を多数掲載しておりますので是非ご覧ください!

物件情報
物件名 川西市錦松台中古戸建
所在地 川西市錦松台11-8
交通 阪急宝塚線 川西能勢口駅 バス12分 徒歩5分
JR福知山線 川西池田駅 バス12分 徒歩5分
価格 成約済
土地面積 218m²(65.94坪)
建物面積 96.99m²(29.33坪)
築年月 平成1年10月
構造 木造
階数 2階建
方位 南西
間取り 6LDK
設備 バルコニー・庭
駐車場 駐車スペース 並列3台以上駐車可能
土地権利 所有権
用途地域 第1種低層住居専用地域
建ぺい率 50%
容積率 100%
接道状況 南西側 私道幅員 約4mに 約9m接面
現況 所有者居住中
引渡し 相談
取引態様 専属専任
小学校区 明峰小学校
中学校区 明峰中学校
周辺地図

大きな地図を見る

※物件の周辺イメージを表すものであり、実際の物件とは異なる場合がございます。

お問い合わせ
お問い合わせ内容(*)

お名前(*)
フリガナ
メールアドレス(*)
電話番号(*)
FAX番号
その他ご質問・要望など
ご連絡方法の指定(*)
同じエリアの物件
画像

一戸建て

成約済

物件ID 3528

川西市鼓が滝2丁目中古戸建 リフォーム物件

◎敷地143.34㎡(約43.36坪) ◎リフォーム物件にて室内・設備綺麗です!◎南西向きにて陽当たり良好! ◎並列駐車2台可! ◎

所在地:
川西市鼓が滝2丁目6-15
価格 交通 土地面積 建物面積 間取り 築年数
成約済 能勢電鉄 日生中央線  鼓が滝駅 徒歩約8分

143.34m² 100.19m² 4LDK 平成16年4月
画像

一戸建て

成約済

物件ID 3461

川西市東畦野山手2丁目中古戸建 ※リフォーム物件

●リフォーム完工後のお引渡し ●南向きにて陽当たり・通風良好 ●軽量鉄骨造2階建 ●LDK約19.7帖で広々です!

所在地:
川西市東畦野山手2丁目6-7
価格 交通 土地面積 建物面積 間取り 築年数
成約済 能勢電鉄妙見線 畦野駅駅 徒歩6分
能勢電鉄妙見線 一の鳥居駅駅 徒歩14分
135.56m² 110.1m² 3LDK 平成9年2月
画像

一戸建て

成約済

物件ID 3404

川西市東多田2丁目中古戸建 築浅リフォーム物件

◎リフォーム完工後のお引渡しです◎縦列駐車2台可(普通車)◎東向き玄関ですが南側に面するLDKは陽当たり良好です!◎能勢電鉄『鼓滝』駅徒歩約8分です!◎徒歩圏内に商業施設充実!

所在地:
川西市東多田2丁目19-22-2
価格 交通 土地面積 建物面積 間取り 築年数
成約済 能勢電鉄 鼓滝駅 徒歩8分

141.47m² 99.36m² 4LDK 平成28年7月建築
画像

一戸建て

成約済

物件ID 3267

川西市松が丘町中古戸建※リフォーム物件

リフォーム渡しの物件です! 南東向きで陽当たり・通風良好! 駐車場2台可!

価格 交通 土地面積 建物面積 間取り 築年数
成約済 阪急宝塚線 川西能勢口駅 徒歩約18分
能勢電鉄 滝山駅 徒歩約19分
JR福知山線 川西池田駅 徒歩25分
188.52m² 129.69m² 5LDK+N 2002年12月
画像

一戸建て

成約済

物件ID 2813

川西市錦松台テラスハウス

駐車スペース1台分あり!2017年に室内リフォーム済みで室内綺麗です!

所在地:
川西市錦松台29-16
価格 交通 土地面積 建物面積 間取り 築年数
成約済 阪急宝塚線 川西能勢口駅 バス9分 徒歩西多田停5分

69.99m² 70.47m² 4DK 1988年3月

■西宮市・尼崎市・芦屋市・東灘区・伊丹市・大阪市、特にJR甲子園口・JR尼崎のエリアで不動産を「売る」・「貸す」・「リフォーム」をご検討の方は、是非、関西ネット不動産にご相談下さい。
■高く売る・早く売る・広告しないで売却・こっそり売却・高く買い取りなどのご要望にもお応え致します。
■取り扱い物件は、新築住宅(戸建)・中古住宅(戸建)・マンション・土地・借地等です。また相続関係・債務整理・任意売却・住宅ローン返済にお困りの方も、弊社売却専門サイトをご覧下さい→西宮不動産売却ナビはこちら
■私の不動産いくら? 無料査定お気軽にご相談下さい。

タカセ不動産 関西ネットゴルフ 関西ネットゴルフ 堀口税理士事務所