全ての一戸建て・マンション・土地・収益物件・賃貸物件の売却購入情報|関西ネット不動産

西宮市、尼崎市、伊丹市、芦屋市、宝塚市の売買仲介(ご売却・ご購入)、査定、賃貸仲介、賃貸管理は関西ネット不動産へ

西宮店0798-31-0119、尼崎店06-4950-6311、北大阪店072-737-4787、大阪南森町店06-6360-4511、新大阪店06-6152-7878

ご相談・お問い合わせ無料!(営業時間 9:00〜18:00 定休日:火曜日、水曜日)

TOP > 物件一覧

関西ネットリフォーム 空家相続センターオープンハウス お客様の声 採用情報

販売物件情報
一覧へ戻る

成約済 三田市ゆりのき台2丁目中古戸建 物件ID 1159

旧大和団地施工の注文住宅!土地面積約89坪!駐車スペース2台分確保!

価格 交通 土地面積 建物面積 間取り 築年数
成約済 神戸電鉄公園都市線 ウッディタウン中央駅 徒歩17分
JR福知山線  新三田駅 バス(神姫バス)乗車約15分 徒歩(ゆりのき台2丁目バス停より)約1分
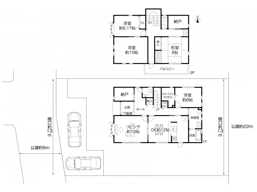
295.19m² 152.83m² 4LDK+2S 平成10年3月
平成10年建築!旧大和団地施工の注文住宅!

平成10年建築!旧大和団地施工の注文住宅!

画像

建物面積 152.83平米の4SLDK!収納豊富です!

  • 駐車スペース2台分あり

    駐車スペース2台分あり

  • 広々庭あり!

    広々庭あり!

  • 南庭に面したリビング

    南庭に面したリビング

  • ゆったりとした玄関

    ゆったりとした玄関

その他ギャラリー

担当者メッセージ
スタッフ画像

青木 由紀雄

担当者詳細

閑静な住宅街で人気の三田市ゆりのき台より

新規物件が出ました!

★土地面積295.19㎡(約89.29坪)

★東西二方接面 

 西側公道約6.0m 

 東側公道約22.0m

★西側間口 約13m 東側間口約13m

★西側間口はT字路になっている為、解放感有

 

◎建物面積152.83㎡(約46.23坪)

◎売主様拘りの注文住宅(旧大和団地施工)

 ・LDに床暖房2面有(ガス)

 ・キッチンは約5帖と広めの設計で

  カップボード有

 ・冷蔵庫も2台置けるスペース有

 ・3口IHクッキングヒーター

 ・納戸2部屋・WICと豊富な収納スペース

 ・各階にトイレ・洗面台有

 ・階段やホール等も広めに設計されております

 ・太陽光温水器設置

  ガス給湯器と切替可能な為、

  悪天候でもご心配ありません。

◎カースペース2台分有

  (車種、置き方により3台駐車可能)

   ・カーポート1台有

 ・前面道路が約6mある為、

  車庫入れが苦手な方でも楽に駐車可能です。

 

 周辺環境

 ・ウッディタウン中央駅・・約1400m

 ・イオン三田ウッディタウン店・・約1400m

 ・三田市立ゆりのき台小学校・・約930m

 ・三田市立ゆりのき台中学校・・約480m

 

 

 

リフォームページが拡大リニューアル致しました!
関西ネットリフォームHP
小規模リフォームから全面リノベーションまで、関西ネットリフォームにお任せください。
物件探しからリフォーム・リノベーションまでのワンストップサービスや、賃貸物件の空室対策リフォーム、店舗設計、解体工事まで、幅広くお手伝いさせていただきます。
楽しく、快適に暮らしていただきたいをモットーに、関西ネットリフォームでは真心を込めたリフォームをご提案致します。
こちらのホームページでは施工事例を多数掲載しておりますので是非ご覧ください!

その他担当者
スタッフ画像

高瀬 健吾

担当者詳細
物件情報
物件名 三田市ゆりのき台2丁目中古戸建
所在地 三田市ゆりのき台2丁目
交通 神戸電鉄公園都市線 ウッディタウン中央駅 徒歩17分
JR福知山線  新三田駅 バス(神姫バス)乗車約15分 徒歩(ゆりのき台2丁目バス停より)約1分
価格 成約済
土地面積 295.19m²(89.29坪)
建物面積 152.83m²(46.23坪)
築年月 平成10年3月
構造 木造
階数 2階建
方位 西
間取り 4LDK+2S
設備 洗面・トイレ・浴室 温水洗浄便座/トイレ2カ所/シャワー付き洗面台/追い炊き
キッチン システムキッチン/対面式キッチン
収納 床下収納/ウォークインクローゼット/納戸
その他設備 床暖房/TVモニター付きインターホン
バルコニー・庭 南面バルコニー/庭
駐車場 有 (カースペース2台有)
土地権利 所有権
用途地域 第1種低層住居専用地域
建ぺい率 50%
容積率 100%
接道状況 西側公道約6m 接面約13m 東側公道約22m 接面約13m
備考 ※引渡平成28年4月末日以降
現況 空家
引渡し 相談
取引態様 専属専任
小学校区 三田市立ゆりのき台小学校
中学校区 三田市立ゆりのき台中学校
お問い合わせ
お問い合わせ内容(*)

お名前(*)
フリガナ
メールアドレス(*)
電話番号(*)
FAX番号
その他ご質問・要望など
ご連絡方法の指定(*)
同じエリアの物件
画像

一戸建て

成約済

物件ID 3499

門真市三ツ島2丁目中古テラスハウス

所在地:
門真市三ツ島2丁目20-40
価格 交通 土地面積 建物面積 間取り 築年数
成約済 地下鉄長堀鶴見緑地線 門真南駅駅 徒歩4分分

34.67m² 42.67m² 3k 昭和54年6 月
画像

一戸建て

成約済

物件ID 3518

三田市すずかけ台一丁目 土地・建物

所在地:
三田市すずかけ台一丁目32-18
価格 交通 土地面積 建物面積 間取り 築年数
成約済 神戸電鉄公園都市線 南ウッディタウン駅 徒歩15分
JR福知山線 新三田駅駅 徒歩27分
170m² 129.92m² 5LDK 2012年7月
画像

一戸建て

成約済

物件ID 3498

河内長野市清見台5丁目中古戸建

所在地:
大阪府河内長野市清見台5丁目2-18
価格 交通 土地面積 建物面積 間取り 築年数
成約済 南海高野線 三日市町駅駅 徒歩14分

228.34m² 120.07m² 5LDK 昭和63年7月
画像

一戸建て

成約済

物件ID 3468

伊丹市鴻池6丁目 中古戸建※リフォーム物件

所在地:
伊丹市鴻池6丁目21-14
価格 交通 土地面積 建物面積 間取り 築年数
成約済 JR福知山線 JR伊丹駅駅 バス17分 徒歩鴻池バス停より徒歩約5分

100.55m² 98.01m² 3LDK+WIC 2002年2月
画像

一戸建て

成約済

物件ID 3403

八尾市安中町8丁目中古戸建

所在地:
大阪府八尾市安中町8丁目1-18
価格 交通 土地面積 建物面積 間取り 築年数
成約済 JR関西本線 八尾駅駅 徒歩10分

42m² 50.94m² 3DK 昭和54年1月

■西宮市・尼崎市・芦屋市・東灘区・伊丹市・大阪市、特にJR甲子園口・JR尼崎のエリアで不動産を「売る」・「貸す」・「リフォーム」をご検討の方は、是非、関西ネット不動産にご相談下さい。
■高く売る・早く売る・広告しないで売却・こっそり売却・高く買い取りなどのご要望にもお応え致します。
■取り扱い物件は、新築住宅(戸建)・中古住宅(戸建)・マンション・土地・借地等です。また相続関係・債務整理・任意売却・住宅ローン返済にお困りの方も、弊社売却専門サイトをご覧下さい→西宮不動産売却ナビはこちら
■私の不動産いくら? 無料査定お気軽にご相談下さい。

タカセ不動産 関西ネットゴルフ 関西ネットゴルフ 堀口税理士事務所