全ての一戸建て・マンション・土地・収益物件・賃貸物件の売却購入情報|関西ネット不動産

西宮市、尼崎市、伊丹市、芦屋市、宝塚市の売買仲介(ご売却・ご購入)、査定、賃貸仲介、賃貸管理は関西ネット不動産へ

西宮店0798-31-0119、尼崎店06-4950-6311、北大阪店072-737-4787、大阪南森町店06-6360-4511、新大阪店06-6152-7878

ご相談・お問い合わせ無料!(営業時間 9:00〜18:00 定休日:火曜日、水曜日)

TOP > 物件一覧

関西ネットリフォーム 空家相続センターオープンハウス お客様の声 採用情報

販売物件情報
一覧へ戻る

成約済 メロディーハイム内本町 物件ID 1562

リフォーム10月上旬完了予定です!

価格 交通 専有面積 間取り 階数 築年数
成約済 地下鉄谷町線 谷町四丁目駅 徒歩4分

70.17m² 2SLDK 14 平成10年11月
担当者メッセージ
スタッフ画像

谷村 嘉彦

担当者詳細

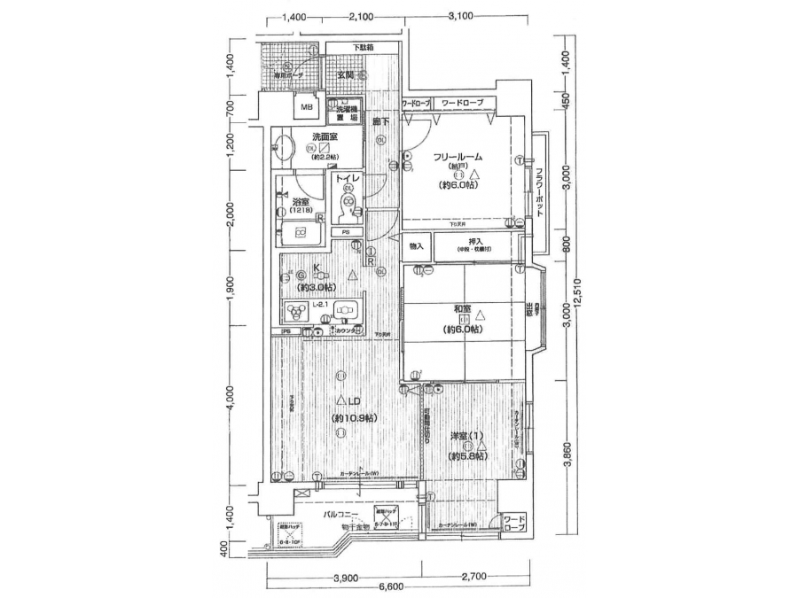
メロディーハイム内本町

 

3つのおすすめポイント

 

その①

リフォーム渡し!(平成28年10月上旬完了予定)

・クロス張替(全室)

・CFシート上貼(LD、廊下、洋室、水廻り)

・カーペット張替(納戸)

・畳表替え、襖表替え

・障子張替

・ガラストップコンロ新調

・食洗機新調

・温水洗浄便座新調

・洗面化粧台新調

・ハウスクリーニング 等

 

その②

70㎡超えの2SLDK!

・洋室 約5.8帖、和室 6帖、LD 約10.9帖、K 約3帖

・サービスルーム 約6帖

・専有面積 70.17㎡

・バルコニー面積 5.52

・全居室収納有

 

その③

駅近で周辺施設も充実な立地!

・地下鉄谷町線 「谷町四丁目」駅 徒歩4分

・地下鉄堺筋線 「堺筋本町」駅 徒歩9分

・セブンイレブン 徒歩1分

・コーヨー 徒歩1分

・三菱東京UFJ銀行 徒歩1分

・100円ローソン 徒歩2分

・スギ薬局 徒歩2分

・郵便局 徒歩3分

・業務用スーパー 徒歩5分

 

お問い合わせ、ご内覧予約はお気軽に♪

 

リフォームページが拡大リニューアル致しました!
関西ネットリフォームHP
小規模リフォームから全面リノベーションまで、関西ネットリフォームにお任せください。
物件探しからリフォーム・リノベーションまでのワンストップサービスや、賃貸物件の空室対策リフォーム、店舗設計、解体工事まで、幅広くお手伝いさせていただきます。
楽しく、快適に暮らしていただきたいをモットーに、関西ネットリフォームでは真心を込めたリフォームをご提案致します。
こちらのホームページでは施工事例を多数掲載しておりますので是非ご覧ください!

物件情報
物件名 メロディーハイム内本町
所在地 大阪市中央区鎗屋町1-3-10
交通 地下鉄谷町線 谷町四丁目駅 徒歩4分

価格 成約済
専有面積 70.17m²(21.22坪)
バルコニー面積 5.52m²(1.66坪)
築年月 平成10年11月
構造 鉄筋鉄骨コンクリート造
階数 14階建
所在階 8階部分
間取り 2SLDK
設備 洗面・トイレ・浴室 温水洗浄便座/シャワー付き洗面台
キッチン システムキッチン/食器洗浄乾燥機
収納 納戸
その他設備 TVモニター付きインターホン/オートロック/エレベーター
ペット可 不可
総戸数 46戸
管理費 10,530円
修繕積立費 7,020円
現況 空家
引渡し 相談
取引態様 仲介
周辺地図

大きな地図を見る

※物件の周辺イメージを表すものであり、実際の物件とは異なる場合がございます。

お問い合わせ
お問い合わせ内容(*)

お名前(*)
フリガナ
メールアドレス(*)
電話番号(*)
FAX番号
その他ご質問・要望など
ご連絡方法の指定(*)
同じエリアの物件
画像

マンション

成約済

物件ID 3548

栄南団地10号棟

栄南団地10号棟

所在地:
栄南団地10号棟501号
価格 交通 専有面積 間取り 所在階 築年数
成約済 JR福知山線 川西池田駅 徒歩3分
阪急宝塚線 川西能勢口駅 徒歩3分
能勢電鉄妙見線 川西能勢口駅 徒歩3分
70.09m² 3LDK 5 1983/5
画像

マンション

成約済

物件ID 3495

ハイマート新大阪

所在地:
大阪府大阪市淀川区5丁目9番39号
価格 交通 専有面積 間取り 所在階 築年数
成約済 地下鉄御堂筋線 東三国駅駅 徒歩4分
JR東海道本線 新大阪駅駅 徒歩11分
66.7m² 2LDK 8 1978年4月
画像

マンション

成約済

物件ID 3496

エスリード新大阪第6

所在地:
大阪市淀川区西中島1丁目1-6
価格 交通 専有面積 間取り 所在階 築年数
成約済 阪急京都線 南方駅駅 徒歩8分
JR東海道本線 新大阪駅駅 徒歩14分
18.36m² 1K 5 平成9年8月
画像

マンション

成約済

物件ID 3505

十三本町ユニハウス

所在地:
大阪市淀川区十三本町3丁目5-11
価格 交通 専有面積 間取り 所在階 築年数
成約済 阪急神戸線 十三駅 徒歩7分

24.91m² 1R 7 1988年11月
画像

マンション

成約済

物件ID 3429

朝日プラザアクシス東淀川

所在地:
大阪市東淀川区菅原7丁目6-8
価格 交通 専有面積 間取り 所在階 築年数
成約済 JRおおさか東線 淡路駅 徒歩5分
阪急電鉄京都線 淡路駅 徒歩8分
阪急電鉄千里線 下新庄駅 徒歩8分
16.26m² ワンルーム 2 平成3年4月

■西宮市・尼崎市・芦屋市・東灘区・伊丹市・大阪市、特にJR甲子園口・JR尼崎のエリアで不動産を「売る」・「貸す」・「リフォーム」をご検討の方は、是非、関西ネット不動産にご相談下さい。
■高く売る・早く売る・広告しないで売却・こっそり売却・高く買い取りなどのご要望にもお応え致します。
■取り扱い物件は、新築住宅(戸建)・中古住宅(戸建)・マンション・土地・借地等です。また相続関係・債務整理・任意売却・住宅ローン返済にお困りの方も、弊社売却専門サイトをご覧下さい→西宮不動産売却ナビはこちら
■私の不動産いくら? 無料査定お気軽にご相談下さい。

タカセ不動産 関西ネットゴルフ 関西ネットゴルフ 堀口税理士事務所