全ての一戸建て・マンション・土地・収益物件・賃貸物件の売却購入情報|関西ネット不動産

西宮市、尼崎市、伊丹市、芦屋市、宝塚市の売買仲介(ご売却・ご購入)、査定、賃貸仲介、賃貸管理は関西ネット不動産へ

西宮店0798-31-0119、尼崎店06-4950-6311、北大阪店072-737-4787、大阪南森町店06-6360-4511、新大阪店06-6152-7878

ご相談・お問い合わせ無料!(営業時間 9:00〜18:00 定休日:火曜日、水曜日)

TOP > 物件一覧

関西ネットリフォーム 空家相続センターオープンハウス お客様の声 採用情報

販売物件情報
一覧へ戻る

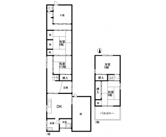
成約済 住道矢田中古テラスハウス 物件ID 31

駅から8分!大阪市東住吉区住道矢田中古テラスハウス

価格 交通 土地面積 建物面積 間取り 築年数
成約済 近鉄南大阪線 矢田駅 徒歩8分

94.35m² 76.78m² 4DK 昭和39年5月
担当者メッセージ
スタッフ画像

植村 晋也

担当者詳細

近鉄南大阪線 矢田駅 徒歩8分!! 

■東住吉区住道矢田中古テラスハウス ■

   ・土地面積 94.35㎡(約28.54坪)

   ・建物面積 76.78㎡(約76.78㎡)

 

★オーナーチェンジ物件です★

 

【賃貸条件】

◆賃料:20,000

◆年収:240,000

◆表面利回り:約8.57%

◆定期建物賃貸契約(20185月期限) 更新可能です。

 

 

不動産投資をはじめようかな・・・

オーナーになろうかなぁ・・・・・

 

という方に特におススメです!!

 

お気軽にお問い合わせ下さい。

 

リフォームページが拡大リニューアル致しました!
関西ネットリフォームHP
小規模リフォームから全面リノベーションまで、関西ネットリフォームにお任せください。
物件探しからリフォーム・リノベーションまでのワンストップサービスや、賃貸物件の空室対策リフォーム、店舗設計、解体工事まで、幅広くお手伝いさせていただきます。
楽しく、快適に暮らしていただきたいをモットーに、関西ネットリフォームでは真心を込めたリフォームをご提案致します。
こちらのホームページでは施工事例を多数掲載しておりますので是非ご覧ください!

物件情報
物件名 住道矢田中古テラスハウス
所在地 大阪市東住吉区住道矢田1丁目15-34
交通 近鉄南大阪線 矢田駅 徒歩8分

価格 成約済
土地面積 94.35m²(28.54坪)
建物面積 76.78m²(23.22坪)
築年月 昭和39年5月
構造 木造
階数 2階建
方位
間取り 4DK
設備 バルコニー・庭
駐車場 なし
土地権利 所有権
用途地域 第1種住居地域
建ぺい率 80%
容積率 200%
接道状況 東側 幅員4m私道
現況 空家
引渡し 即時
コメント 駅から8分!大阪市東住吉区住道矢田中古テラスハウス
周辺地図

大きな地図を見る

※物件の周辺イメージを表すものであり、実際の物件とは異なる場合がございます。

お問い合わせ
お問い合わせ内容(*)

お名前(*)
フリガナ
メールアドレス(*)
電話番号(*)
FAX番号
その他ご質問・要望など
ご連絡方法の指定(*)
同じエリアの物件
画像

一戸建て

成約済

物件ID 3579

大阪市此花区春日出北2丁目中古戸建

所在地:
大阪市此花区春日出北2丁目16-5
価格 交通 土地面積 建物面積 間取り 築年数
成約済 阪神なんば線 千鳥橋駅 徒歩15分
JR桜島線 安治川口駅 徒歩16分
45.79m² 50.83m² 3DK 1981年8月
画像

一戸建て

成約済

物件ID 3513

淀川区加島2丁目テラスハウス

所在地:
大阪府大阪市淀川区加島2丁目2-69
価格 交通 土地面積 建物面積 間取り 築年数
成約済 JR東西線 加島駅駅 徒歩15分

41.03m² 88.65m² 3DK 昭和55年1月
画像

一戸建て

成約済

物件ID 3516

淀川区宮原2丁目店舗付き住宅

所在地:
大阪府大阪市淀川区宮原2丁目5-15
価格 交通 土地面積 建物面積 間取り 築年数
成約済 JR東海道本線 東淀川駅駅 徒歩3分
地下鉄御堂筋線 東三国駅 徒歩4分
40.95m² 134.91m² 4LDK+店舗 昭和48年12月
画像

一戸建て

成約済

物件ID 3386

淀川区塚本6丁目 土地建物

所在地:
大阪市淀川区塚本6丁目4-9
価格 交通 土地面積 建物面積 間取り 築年数
成約済 JR神戸線 塚本駅駅 徒歩7分

138.48m² 151.2m² 6LDK 昭和40年8月
画像

一戸建て

成約済

物件ID 3369

西淀川区大和田4丁目 中古戸建

所在地:
大阪市西淀川区大和田4丁目6-19
価格 交通 土地面積 建物面積 間取り 築年数
成約済 阪神本線 千船駅 徒歩8分
阪神なんば線 出来島駅 徒歩12分
82.41m² 114.56m² 4LDK 平成19年7月築

■西宮市・尼崎市・芦屋市・東灘区・伊丹市・大阪市、特にJR甲子園口・JR尼崎のエリアで不動産を「売る」・「貸す」・「リフォーム」をご検討の方は、是非、関西ネット不動産にご相談下さい。
■高く売る・早く売る・広告しないで売却・こっそり売却・高く買い取りなどのご要望にもお応え致します。
■取り扱い物件は、新築住宅(戸建)・中古住宅(戸建)・マンション・土地・借地等です。また相続関係・債務整理・任意売却・住宅ローン返済にお困りの方も、弊社売却専門サイトをご覧下さい→西宮不動産売却ナビはこちら
■私の不動産いくら? 無料査定お気軽にご相談下さい。

タカセ不動産 関西ネットゴルフ 関西ネットゴルフ 堀口税理士事務所