全ての一戸建て・マンション・土地・収益物件・賃貸物件の売却購入情報|関西ネット不動産

西宮市、尼崎市、伊丹市、芦屋市、宝塚市の売買仲介(ご売却・ご購入)、査定、賃貸仲介、賃貸管理は関西ネット不動産へ

西宮店0798-31-0119、尼崎店06-4950-6311、北大阪店072-737-4787、大阪南森町店06-6360-4511、新大阪店06-6152-7878

ご相談・お問い合わせ無料!(営業時間 9:00〜18:00 定休日:火曜日、水曜日)

TOP > 物件一覧

関西ネットリフォーム 空家相続センターオープンハウス お客様の声 採用情報

販売物件情報
一覧へ戻る

成約済 宝塚市小林1丁目中古戸建 ※リフォーム物件 物件ID 3184

南東角地!陽当たり・通風良好!住友林業の2階建のお家です! 東側玄関で間口約18.3mとても広々しています! 徒歩約8分圏内に商業施設充実も閑静な住宅街です!

価格 交通 土地面積 建物面積 間取り 築年数
成約済 阪急今津線 小林駅 徒歩8分
阪急今津線 逆瀬川駅 徒歩8分
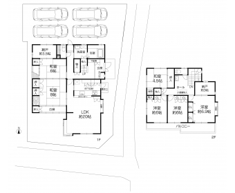
190.76m² 160.23m² 6LDK+2N 1996年3月
南東向きのLDK約20帖 採光・通風良好です!

南東向きのLDK約20帖 採光・通風良好です!

画像

南東角地で陽当たり良好!土地面積190.76㎡ 

  • 南東向きのLDK約20帖ととても広々しています

    南東向きのLDK約20帖ととても広々しています

  • ワイドキッチンはまな板作業が捗りますね!

    ワイドキッチンはまな板作業が捗りますね!

  • 浴室入替済 ワイド浴槽で日々の疲れがとれますね

    浴室入替済 ワイド浴槽で日々の疲れがとれますね

  • 洗面台入替済

    洗面台入替済

その他ギャラリー

担当者メッセージ
スタッフ画像

谷本 一憲

●宝塚市小林1丁目に住友林業施工のリフォームのお家が登場いたしました!

●外観はとても堂々としています!

◎南東向き角地!

◎陽当たり良好です!

◎間取り6LDK+2N!

◎閑静な住宅街!

◎リフォーム完工後のお引渡です!

◎駐車場は普通車4台可! 

【リフォーム内容】

★住宅設備★

システムキッチン入替、浴室入替、1階2階洗面台入替、給湯器入替

外壁・屋根部全面塗装

全室壁・天井クロス貼替

床部・・・フロアタイル上張り、クッションフロア貼替(洗面室床・トイレ床)

和室・・・畳表替え、じゅらく塗替え、襖、障子貼替

出窓カウンター・・・1階・2階出窓カウンター交換

1階広縁床全面フロアタイル上張り

2階バルコニー床防水改装等

 

 

【最寄り駅】※2駅利用可

①阪急今津線「小林」駅・・・約600m

②阪急今津線「逆瀬川」駅・・・約600m

 

【物件概要】

■南東向きの角地

■土地面積:190.76㎡(約57.70坪)

■木造2階建

■床面積:1階97.30㎡ 2階62.93㎡

 延床面積:160.23㎡

■間取り:6LDK+2N

■建築年月:1996年3月(約26年)

■ウッドデッキ有(樹脂製で耐久性抜群です!)

■庭付

■駐車場4台可・・・並列2台×縦列2台=4台 ※その他車以外でも自転車、大型バイクも可能

 

【周辺施設】

・アピアさかせがわ・・・・・・約400m

・フレスコ小林店(スーパー)・・・約700m

・イズミヤ小林店・・・・・・・約800m

・サンディ宝塚小林店・・・・・約1000m

・業務用スーパー宝塚仁川店・・・約1300m

・ローソン宝塚小林3丁目店・・・約300m

・ファミリーマート小林4丁目店・・・約350m

・セブンイレブン宝塚小林3丁目店・・・約450m

・宝塚市立西図書館・・・・・約450m

・スギ薬局宝塚小林店・・・・約650m

・池田泉州銀行逆瀬川支店・・・約550m

・みなと銀行逆瀬川支店・・・約550m

・三井住友銀行 イズミヤ小林店出張所・・・約750m

・宝塚逆瀬川郵便局・・・・・約550m

・医療法人社団斎藤内科・・・・約600m

・成山クリニック・・・・・・約650m

 

●物件に関するお問合せ・・・

関西ネット不動産 西宮店

フリーダイヤル:0120ー698ー398

担当:谷本まで

 

 

 

 

 

リフォームページが拡大リニューアル致しました!
関西ネットリフォームHP
小規模リフォームから全面リノベーションまで、関西ネットリフォームにお任せください。
物件探しからリフォーム・リノベーションまでのワンストップサービスや、賃貸物件の空室対策リフォーム、店舗設計、解体工事まで、幅広くお手伝いさせていただきます。
楽しく、快適に暮らしていただきたいをモットーに、関西ネットリフォームでは真心を込めたリフォームをご提案致します。
こちらのホームページでは施工事例を多数掲載しておりますので是非ご覧ください!

物件情報
物件名 宝塚市小林1丁目中古戸建 ※リフォーム物件
所在地 宝塚市小林1丁目9-12
交通 阪急今津線 小林駅 徒歩8分
阪急今津線 逆瀬川駅 徒歩8分
価格 成約済
土地面積 190.76m²(57.7坪)
建物面積 160.23m²(48.46坪)
築年月 1996年3月
構造 木造
階数 2階建
方位 南東
間取り 6LDK+2N
設備 洗面・トイレ・浴室 温水洗浄便座/トイレ2カ所/シャワー付き洗面台/追い炊き
キッチン 対面式キッチン/IHクッキングヒーター
収納 床下収納/屋根裏収納/納戸
その他設備 TVモニター付きインターホン
バルコニー・庭 南面バルコニー/ウッドデッキ/庭
駐車場 有り
土地権利 所有権
用途地域 第1種中高層住居専用地域
建ぺい率 60%
容積率 200%
接道状況 2方道路
現況 空家
引渡し 相談
取引態様 専任
小学校区 良元小学校 約450m
中学校区 宝塚第一中学校 約1900m
お問い合わせ
お問い合わせ内容(*)

お名前(*)
フリガナ
メールアドレス(*)
電話番号(*)
FAX番号
その他ご質問・要望など
ご連絡方法の指定(*)
同じエリアの物件
画像

一戸建て

成約済

物件ID 3526

宝塚市光ガ丘1丁目中古戸建 リフォーム物件

◎リフォーム物件! ◎間取り3LDK+3N+WIC+2多目的ルーム ◎全室居室南側に面し陽当たり良好! ◎ウッドデッキ・バルコニーからの眺望良好です!

所在地:
宝塚市光ガ丘1丁目19-18
価格 交通 土地面積 建物面積 間取り 築年数
成約済 阪急今津線 逆瀬川駅駅 バス10分 徒歩3分

168.79m² 126.08m² 3LDK+3N+WIC+多目的R 1989年11月
画像

一戸建て

成約済

物件ID 3422

宝塚市谷口町新築戸建

堂々完成!建物・外構完成しました!内覧ご希望の方、先着で受付中♪実際の住まいをぜひご体感ください。この機会をお見逃しなく!

所在地:
宝塚市谷口町2-14(予定)
価格 交通 土地面積 建物面積 間取り 築年数
成約済 阪急今津線 小林駅 徒歩7分

53.82m² 92.73m² 4LDK 令和7年2月末完成予定

2025年2月22日 (土) ~ 2025年2月24日 (月) 11:00~16:00

画像

一戸建て

成約済

物件ID 3136

宝塚市末成町新築戸建

並列2台駐車可能 宝塚市末成町新築戸建

所在地:
宝塚市末成町17番以下未定
価格 交通 土地面積 建物面積 間取り 築年数
成約済 阪急今津線 小林駅 徒歩15分

98.16m² 99.83m² 4LDK

画像

一戸建て

成約済

物件ID 3381

宝塚市中筋1丁目中古テラスハウス

◎2線2駅利用可!◎周辺買物施設有り1 ◎室内綺麗にお使いです! ◎敷地内駐車場有り!

所在地:
宝塚市中筋1丁目4-4
価格 交通 土地面積 建物面積 間取り 築年数
成約済 阪急宝塚線 中山観音駅 徒歩約5分
JR福知山線 中山寺駅 徒歩約5分
62.45m² 71.32m² 4DK 平成9年1月建築
画像

一戸建て

成約済

物件ID 3186

宝塚市高司4丁目 中古テラスハウス リフォーム完工物件

●室内全面改装済物件の登場です! ●木造3階建 ●ビルトイン車庫有り! ●倉庫有り! ●前面道路高低差無し!

所在地:
宝塚市高司4丁目5-20
価格 交通 土地面積 建物面積 間取り 築年数
成約済 阪急今津線 小林駅 徒歩22分
仁川駅 徒歩21分
42.22m² 87.86m² 3DK 1996年9月

2024年1月7日 (日) ~ 2024年1月28日 (日) 13:00~16:00

■西宮市・尼崎市・芦屋市・東灘区・伊丹市・大阪市、特にJR甲子園口・JR尼崎のエリアで不動産を「売る」・「貸す」・「リフォーム」をご検討の方は、是非、関西ネット不動産にご相談下さい。
■高く売る・早く売る・広告しないで売却・こっそり売却・高く買い取りなどのご要望にもお応え致します。
■取り扱い物件は、新築住宅(戸建)・中古住宅(戸建)・マンション・土地・借地等です。また相続関係・債務整理・任意売却・住宅ローン返済にお困りの方も、弊社売却専門サイトをご覧下さい→西宮不動産売却ナビはこちら
■私の不動産いくら? 無料査定お気軽にご相談下さい。

タカセ不動産 関西ネットゴルフ 関西ネットゴルフ 堀口税理士事務所