枚方市出口三丁目新築戸建|関西ネット不動産

西宮市、尼崎市、伊丹市、芦屋市、宝塚市の売買仲介(ご売却・ご購入)、査定、賃貸仲介、賃貸管理は関西ネット不動産へ

西宮店0798-31-0119、尼崎店06-4950-6311、北大阪店072-737-4787、大阪南森町店06-6360-4511、新大阪店06-6152-7878

ご相談・お問い合わせ無料!(営業時間 9:00〜18:00 定休日:火曜日、水曜日)

TOP物件一覧 > 枚方市出口三丁目新築戸建

関西ネットリフォーム 空家相続センターオープンハウス お客様の声 採用情報

販売物件情報
一覧へ戻る

枚方市出口三丁目新築戸建 物件ID 3567

北側再開発中の京阪本線光善寺駅徒歩約10分の立地に誕生します。駅までの道のりは平坦です。陽当たり良好の木造2階建 間取り3LDK+WICのプランです。

価格 交通 土地面積 建物面積 間取り 築年数
3,680万円(税込) 京阪本線 善光寺駅 徒歩約10分
京阪本線 枚方公園駅 徒歩約27分
77.69m² 101.83m² 3LDK+WIC 2025年12月下旬完成予定
2025年12月下旬完成予定!3LDK+WIC

2025年12月下旬完成予定!3LDK+WIC

画像

2025年12月下旬完成予定!3LDK+WIC

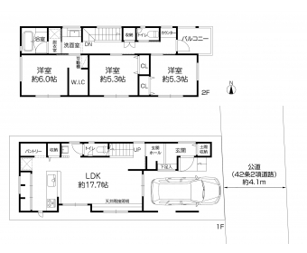
  • 約17.7帖LDK

    約17.7帖LDK

  • 対面式キッチン

    対面式キッチン

  • タッチレス水栓・食器洗い乾燥機など機能性良好♪

    タッチレス水栓・食器洗い乾燥機など機能性良好♪

  • タンクレストイレ採用!見た目のスタイリッシュ◎

    タンクレストイレ採用!見た目のスタイリッシュ◎

その他ギャラリー

担当者メッセージ
スタッフ画像

谷本 一憲

京阪本線「善光寺」駅徒歩約10分!
広々とした約17.7帖LDKで家族団らんが叶う理想の新築戸建♪

■家族に嬉しいこだわりの間取り設計!
3LDK+WIC で、家族全員がゆったり暮らせる空間を実現!
各居室収納スペースを装備し、荷物が多いご家庭にも安心。
1階はLDK 約17.7 帖と家族が集う広々スペース。採光設計で明るく快適な空間です!
2階には静かな寝室や子ども部屋を配置。居室と居室の間に収納を挟み、家族全員のプライベートを守りながら快適に過ごせます。また、全居室は南からの陽当たりも良好

■最新の設備を備えた新築物件!
令和7 年12 月下旬完成予定の新築物件!最新の設備で快適な暮らしをサポートします。
木造2 階建てで地震に強い設計!安心して長く暮らせます。

■立地が便利で暮らしやすい!
駅徒歩約10 分で主要都市へのアクセスが容易、日々の通勤・通学に最適。
周辺にはスーパーやコンビニがあり、日々の買い物もラクラク。
平坦地に位置しており、自転車や徒歩での移動にも便利です!

■駐車場完備で車移動も快適!
駐車場1 台分を完備!車をよく使うご家庭にとって便利なプランです。
また、国道1 号線へのアクセスが楽々です。

\\2025年12月下旬完成予定の新築戸建//
物件に関するお問合せやローンのご相談もお気軽にお声掛けください!
物件担当:谷本(タニモト)
TEL:0798-69-2333

リフォームページが拡大リニューアル致しました!
関西ネットリフォームHP
小規模リフォームから全面リノベーションまで、関西ネットリフォームにお任せください。
物件探しからリフォーム・リノベーションまでのワンストップサービスや、賃貸物件の空室対策リフォーム、店舗設計、解体工事まで、幅広くお手伝いさせていただきます。
楽しく、快適に暮らしていただきたいをモットーに、関西ネットリフォームでは真心を込めたリフォームをご提案致します。
こちらのホームページでは施工事例を多数掲載しておりますので是非ご覧ください!

物件情報
物件名 枚方市出口三丁目新築戸建
所在地 枚方市出口町三丁目20-11(予定)
交通 京阪本線 善光寺駅 徒歩約10分
京阪本線 枚方公園駅 徒歩約27分
価格 3,680万円(税込)
土地面積 77.69m²(23.5坪)
建物面積 101.83m²(30.8坪)
築年月 2025年12月下旬完成予定
構造 木造
階数 2階建
方位
間取り 3LDK+WIC
設備 洗面・トイレ・浴室 温水洗浄便座/トイレ2カ所/シャワー付き洗面台/追い炊き
キッチン システムキッチン/対面式キッチン/食器洗浄乾燥機
収納 ウォークインクローゼット
その他設備 TVモニター付きインターホン
駐車場 1台無料(敷地内)
土地権利 所有権
用途地域 第1種住居地域
建ぺい率 60%
容積率 200%
接道状況 一方
備考 ※掲載情報と現況が異なる場合は現況を優先します。 ※引き渡しは期限指定あり。 ※司法書士売主指定有り ※前面道路:42条2項道路 ※1階面積44.95㎡は車庫部分9.72㎡含む ※建築確認済証番号 第R07確認建築近確0001323号(令和7年8月22日)
現況 建築中
引渡し 相談
取引態様 専任
小学校区 蹉跎西小学校
中学校区 蹉跎中学校
支払いシミュレーション

例えば、 借入額:3,680万円 金利:0.595% 借入期間:35年の場合

物件価格

3,680万円(税込)

97,080

ご相談・お問い合わせ
お名前(*)
フリガナ
郵便番号 -
都道府県
市区郡町名・番地
建物名
メールアドレス(*)
電話番号(*)
FAX番号
お問い合わせ内容(*)

その他、ご要望やコメントなどございましたら入力下さい。

ご連絡方法の指定(*)
同じエリアの物件
画像

一戸建て

物件ID 3603

神戸市須磨区東落合二丁目新築戸建1号地

【全2区画販売中!】2026年2月末頃完成予定!神戸市西神・山手線「名谷駅」徒歩約13分!省エネ新築住宅!

所在地:
神戸市須磨区東落合2丁目5-22
価格 交通 土地面積 建物面積 間取り 築年数
4,780万円(税込) 神戸市西神・山手線 名谷駅 徒歩13分
神戸市西神・山手線 妙法寺駅 徒歩21分
121.16m² 94.37m² 4LDK 2026年2月末完成予定
画像

一戸建て

物件ID 3604

神戸市須磨区東落合二丁目新築戸建2号地

【全2区画販売中!】2026年2月末頃完成予定!神戸市西神・山手線「名谷駅」徒歩約13分!省エネ新築住宅!

所在地:
神戸市須磨区東落合2丁目5-22
価格 交通 土地面積 建物面積 間取り 築年数
4,780万円(税込) 神戸市西神・山手線 名谷駅 徒歩13分
神戸市西神・山手線 妙法寺駅 徒歩21分
122.5m² 93.75m² 4LDK 2026年2月末完成予定
画像

一戸建て

物件ID 3551

大阪府東大阪市宝町 店舗付き物件

所在地:
大阪府東大阪市宝町1911
価格 交通 土地面積 建物面積 間取り 築年数
1,780万円(税込) 近鉄けいはんな線 新石切駅駅 徒歩17分
近鉄けいはんな線 徒歩22分
近鉄難波・奈良線 徒歩22分
98.55m² 70.52m² 2K 48年
画像

一戸建て

物件ID 3546

堺市西区鳳中町3丁目 中古戸建

所在地:
堺市西区鳳中町3丁目88-1
価格 交通 土地面積 建物面積 間取り 築年数
1,780万円 JR阪和線 鳳駅駅 徒歩1分
JR阪和線 富木駅駅 徒歩21分
112.84m² 45.48m² 4K+N 1948年1月
画像

一戸建て

物件ID 3506

守口市八雲北町一丁目テラスハウス

所在地:
大阪府守口市八雲北町一丁目32-9
価格 交通 土地面積 建物面積 間取り 築年数
290万円 地下鉄谷町線 守口駅駅 徒歩20分
京阪本線 守口市駅駅 徒歩26分
47.41m² 41.31m² 3DK 昭和42年1月

■西宮市・尼崎市・芦屋市・東灘区・伊丹市・大阪市、特にJR甲子園口・JR尼崎のエリアで不動産を「売る」・「貸す」・「リフォーム」をご検討の方は、是非、関西ネット不動産にご相談下さい。
■高く売る・早く売る・広告しないで売却・こっそり売却・高く買い取りなどのご要望にもお応え致します。
■取り扱い物件は、新築住宅(戸建)・中古住宅(戸建)・マンション・土地・借地等です。また相続関係・債務整理・任意売却・住宅ローン返済にお困りの方も、弊社売却専門サイトをご覧下さい→西宮不動産売却ナビはこちら
■私の不動産いくら? 無料査定お気軽にご相談下さい。

タカセ不動産 関西ネットゴルフ 関西ネットゴルフ 堀口税理士事務所