全ての一戸建て・マンション・土地・収益物件・賃貸物件の売却購入情報|関西ネット不動産

西宮市、尼崎市、伊丹市、芦屋市、宝塚市の売買仲介(ご売却・ご購入)、査定、賃貸仲介、賃貸管理は関西ネット不動産へ

西宮店0798-31-0119、尼崎店06-4950-6311、北大阪店072-737-4787、大阪南森町店06-6360-4511、新大阪店06-6152-7878

ご相談・お問い合わせ無料!(営業時間 9:00〜18:00 定休日:火曜日、水曜日)

TOP > 物件一覧

関西ネットリフォーム 空家相続センターオープンハウス お客様の声 採用情報

販売物件情報
一覧へ戻る

成約済 プレステージ武庫之荘 物件ID 772

成約御礼! 売却物件探しています!

価格 交通 専有面積 間取り 階数 築年数
成約済 阪急神戸線 武庫之荘駅 徒歩9分

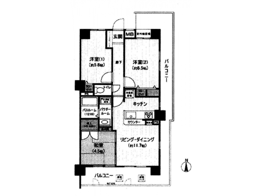
61.31m² 3LDK 6 平成11年6月
担当者メッセージ
スタッフ画像

松原 剛一

担当者詳細
物件情報
物件名 プレステージ武庫之荘
所在地 尼崎市富松町1丁目3-21
交通 阪急神戸線 武庫之荘駅 徒歩9分

価格 成約済
専有面積 61.31m²(18.54坪)
バルコニー面積 23.48m²(7.1坪)
築年月 平成11年6月
構造 鉄筋コンクリート造
階数 6階建
所在階 6階部分
間取り 3LDK
設備 その他設備 エレベーター
総戸数 42戸
管理費 5,200円
修繕積立費 9,500円
現況 空家
引渡し 相談
取引態様 仲介
小学校区 尼崎北小学校
中学校区 塚口中学校
周辺地図

大きな地図を見る

※物件の周辺イメージを表すものであり、実際の物件とは異なる場合がございます。

お問い合わせ
お問い合わせ内容(*)

お名前(*)
フリガナ
メールアドレス(*)
電話番号(*)
FAX番号
その他ご質問・要望など
ご連絡方法の指定(*)
同じエリアの物件
画像

マンション

成約済

物件ID 3510

園田第2シェトア

所在地:
尼崎市東園田町5丁目15-1
価格 交通 専有面積 間取り 所在階 築年数
成約済 阪急神戸線 園田駅 徒歩7分

50.01m² 2LDK 3 1973年2月
画像

マンション

成約済

物件ID 3497

サントピア尼崎ニッサンハイツ

所在地:
兵庫県尼崎市東難波町5丁目16-28
価格 交通 専有面積 間取り 所在階 築年数
成約済 阪神本線 尼崎駅駅 徒歩8分
阪神本線 出屋敷駅駅 徒歩16分
72.06m² 2LDK+S 2 昭和56年1 月
画像

マンション

成約済

物件ID 3458

ダイドーメゾン塚口Ⅱ

所在地:
尼崎市南塚口町3丁目2-18
価格 交通 専有面積 間取り 所在階 築年数
成約済 阪急神戸線 塚口駅駅 徒歩約6分
JR福知山線 塚口駅駅 徒歩約9分
JR福知山線 猪名寺駅駅 徒歩約21分
15.74m² 1R 4 1985年7月
画像

マンション

成約済

物件ID 3384

ドルミ尼崎

所在地:
尼崎市次屋1丁目8-12
価格 交通 専有面積 間取り 所在階 築年数
成約済 JR神戸線 尼崎駅 徒歩15分

53.55m² 2DK 7 1976/02
画像

マンション

成約済

物件ID 3348

サンマンション塚口第弐2階

サンマンション塚口第弐2階

所在地:
尼崎市東塚口町一丁目11-1
価格 交通 専有面積 間取り 所在階 築年数
成約済 JR福知山線 塚口駅駅 徒歩3分
阪急神戸線 塚口駅駅 徒歩10分
61.6m² 3LDK 2 昭和54年7月

■西宮市・尼崎市・芦屋市・東灘区・伊丹市・大阪市、特にJR甲子園口・JR尼崎のエリアで不動産を「売る」・「貸す」・「リフォーム」をご検討の方は、是非、関西ネット不動産にご相談下さい。
■高く売る・早く売る・広告しないで売却・こっそり売却・高く買い取りなどのご要望にもお応え致します。
■取り扱い物件は、新築住宅(戸建)・中古住宅(戸建)・マンション・土地・借地等です。また相続関係・債務整理・任意売却・住宅ローン返済にお困りの方も、弊社売却専門サイトをご覧下さい→西宮不動産売却ナビはこちら
■私の不動産いくら? 無料査定お気軽にご相談下さい。

タカセ不動産 関西ネットゴルフ 関西ネットゴルフ 堀口税理士事務所